News
Projekte
Alle
Wettbewerbe
Wohnen
Kunst / Kultur
Gesundheit / Soziales
Öffentlich / Infrastruktur
Gewerbe / Büro
Büro
Kontakt
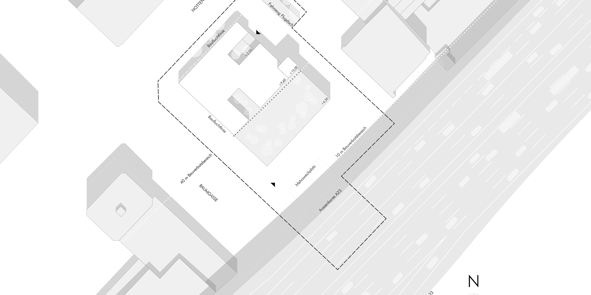
Feuerwache Landstraße
Ort: Wien, Österreich
Architekturwettbewerb 2018
Preis: Teilnahme, EU weiter Realisierungswettbewerb